RESIDENCIAL HARMONY
Superficie construida
3.019,51 m2
Nº de plantas
2
Tipo
Unifamiliar adosada

Nueva promoción
HARMONY
Ubicado en la Nueva Flota.
Con 6 unidades disponibles distribuidas en 2 alturas + Planta sótano, HARMONY ofrece amplias viviendas unifamiliares adosadas con 5 habitaciones, piscina privada y terraza a ambos lados de la calle.

Personaliza el diseño de tu futuro hogar seleccionando acabados de primera.

CARACTERÍSTICAS:

  • Piscina privada.
  • Terraza privada.
  • Climatización.
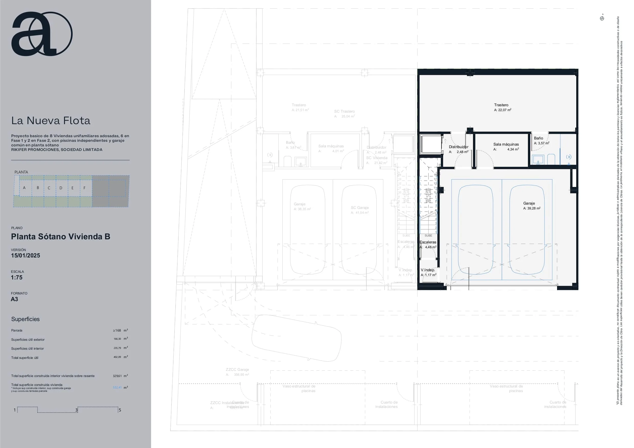
  • Sótano con garaje y sala polivalente.
01
Exteriores
Amplias zonas exteriores que te aportan confort y relajación en plena ciudad

-Zonas de Lujo: Relájate y disfruta en la piscina privada situada en la terraza sur de la vivienda.
-Ubicación Estratégica y Conectividad: Rodeado de zonas verdes y jardines, el HARMONY goza de una conexión excelente con el centro de la ciudad, proporcionando un equilibrio perfecto entre la vida urbana y la tranquilidad de la naturaleza.

02
Interiores
Participa en el diseño de tu futuro hogar seleccionando acabados de primera calidad.

-Diseño y Comodidad: En planta baja contamos con el salón-comedor-cocina abierto, un espacio volcado a las terrazas de la vivienda. El comedor cuenta con una doble altura que recibe iluminación cenital por una claraboya situada en cubierta, que ilumina y estructura también la planta primera de 4 habitaciones y una sala polivalente abierta o bien 5 habitaciones. En planta sótano encontramos un amplio garaje con doble plaza de aparcamiento y una sala polivalente. Las viviendas contarán con sistema de aire acondicionado, armarios empotrados forrados y puerta acorazada para asegurar tanto confort como seguridad.

Detalles de calidad
01

Memoria de calidades

05
planta funcional